Quadrilocale in vendita

San Secondo Di Pinerolo, Via chiesa di miradolo - Miradolo
€ 149.000
Prezzo aggiornato
4 locali 4 locali
100 Mq 100 Mq
1 bagno 1 bagno

Quadrilocale in vendita

San Secondo Di Pinerolo, Via chiesa di miradolo - Miradolo

Descrizione annuncio

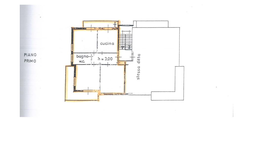
In una tranquilla zona residenziale di Miradolo, lontana dal caos ma comodamente servita da tutte le principali attività e infrastrutture, proponiamo in vendita un appartamento situato al secondo e ultimo piano di una piccola palazzina composta da sole quattro unità abitative.

L’ingresso si apre su un’ampia zona giorno con cucina a vista e sala in un unico ambiente accogliente e luminoso, che offre l’accesso diretto a un balcone. Proseguendo, sulla sinistra, si trova la prima camera da letto matrimoniale, caratterizzata da una grande finestra che garantisce ottima luminosità.

Più avanti si trova il soggiorno, anch’esso molto luminoso e con accesso diretto a un terrazzo privato, ideale per godersi momenti di relax all’aperto. Il bagno è finestrato e completo di tutti i sanitari. La seconda camera da letto, anch’essa molto spaziosa e ben illuminata, dispone di un ulteriore accesso per il balcone.

A completare la proprietà troviamo un box auto singolo di proprietà e un cortile condominiale ben curato, dove è presente una comoda zona barbecue a disposizione dei residenti.

La soluzione è ideale per chi cerca un contesto riservato, senza rinunciare alla praticità dei servizi e alla qualità della vita.

NON ci sono spese condominiali.

Mostra tutto

Nelle vicinanze

Trasporto pubblico Trasporto pubblico
Stazione di Pinerolo
Stazione di Pinerolo
3,0 Km
Pinerolo (P.za Cavour)-Capolinea
Pinerolo (P.za Cavour)-Capolinea
2,4 Km
Pinerolo P.za Cavour
Pinerolo P.za Cavour
2,5 Km
Ricariche auto elettriche Ricariche auto elettriche
Pinerolo Via Saluzzo | EnelX
2,3 Km
Pinerolo Via Saluzzo | SEMM
2,3 Km
Scuole Scuole
Scuola Secondaria Inferiore di San Secondo
660 m
Scuola Media F. Brignone
2,0 Km
Scuola Primaria "Cesare Battisti"
2,2 Km
Scuola Primaria "Giovanni XXIII"
2,5 Km
Scuole
2,5 Km
Farmacia Farmacia
Farmacia Mellano
940 m
Farmacia
1,2 Km
Farmacia Bricco
1,7 Km
Farmacia Bert
1,9 Km
Parafarmacia Santa Croce
2,2 Km
Ospedali Ospedali
Cottolengo
1,9 Km
Supermercati Supermercati
Carrefour
1,2 Km
Carrefour Market
2,2 Km
Iperfresco Basko
2,4 Km
Carrefour Express
2,7 Km
Negozi Negozi
Negozi
1,3 Km
Boaglio Mario
2,1 Km
Ciliegio Fiorito
2,2 Km
Grissinificio Due Valli
2,4 Km
Angiolini Adriano
2,4 Km
Bar Bar
Jocker Pub
920 m
Bar Carolina
1,9 Km
Bar Trattoria Veloce Club
2,2 Km
Espresso Italia
2,3 Km
Caffeina
2,4 Km
Ristoranti Ristoranti
Agriturismo Il Tiglio;Fattoria Didattica
620 m
Miradolo 2.0
690 m
Il Punto... A Capo
1,0 Km
Le Midi
1,7 Km
Agriturismo Favè
2,0 Km
Mostra tutto

Caratteristiche

Rif.:
61109668
Piano:
2 di 2 (Piano alto)
Box:
1
Posti auto:
3
Balconi:
1
Terrazzi:
1
Mostra tutto
Prezzo Prezzo
€ 149.000
Rata mutuo Rata mutuo
€ 702 / mese
Spese annue Spese annue
€ 0
Proponi il tuo prezzoProponi il tuo prezzo

Classe Energetica

E
E
E
E
E
E
E
E
E
Anno di costruzione:
1980
Riscaldamento:
Autonomo
Tipo impianto:
A radiatori
Tipo alimentazione:
Metano

Prezzo ridotto di €1 (12%%)

Ti interessa visionare l'immobile?

Fissa un appuntamento  Fissa un appuntamento

Richiedi informazioni

Clicca su Leggi per aprire l'informativa
* Questi campi sono obbligatori

Calcola il tuo mutuo

Semplice e senza impegno
Anticipo

( % )
Mutuo

( % )

pochi semplici passi

inserisci i tuoi dati
Questionario completato
Grazie per aver richiesto un appuntamento senza impegno con un nostro Consulente del Credito e Assicurativo.

Hai inserito correttamente tutti i dati necessari e a breve riceverai una e-mail con un link da convalidare per inviare i tuoi dati.
Affiliato
Studio San Secondo Sas
Via Bonatto, 10/B 10060 San Secondo Di Pinerolo (TO)

Il nostro staff


  • Alessandro Torcisi
    Affiliato
Via Bonatto, 10/B 10060 San Secondo Di Pinerolo (TO)
Zona: San Secondo-Osasco-Porte-S. Pietro-Prarostino
Mostra su mappa
Orari: da LUNEDI' a VENERDI' 09.00-12.30 e 14.30-19.30; SABATO CHIUSURA 18.00
Affiliato
Studio San Secondo Sas
Via Bonatto, 10/B 10060 San Secondo Di Pinerolo (TO)

2026 Tecnocasa Franchising S.p.A. - P. IVA 08365160152 - Via Monte Bianco 60/A 20089 Rozzano (MI). Ogni agenzia ha un proprio titolare ed è autonoma. Privacy policy | Policy utilizzo | Cookie policy