5 locali in vendita

Osasco, Via Sommeiller - Centro
€ 259.000
5 locali 5 locali
90 Mq 90 Mq
1 bagno 1 bagno

5 locali in vendita

Osasco, Via Sommeiller - Centro

Descrizione annuncio

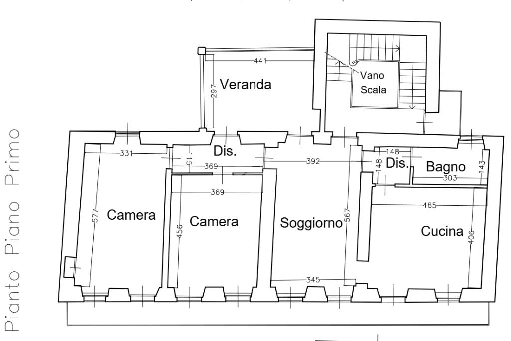
Nel cuore del centro di Osasco (TO), proponiamo in vendita appartamento al piano primo di nuova realizzazione, inserito in un contesto trifamiliare derivante dal recupero di un tipico cascinale piemontese.

L’intervento prevede la riqualificazione completa dell’immobile, con particolare attenzione al mantenimento del fascino della struttura originaria unito al comfort delle moderne tecnologie costruttive.

L’appartamento, situato al piano primo con veranda, ed è composto da un ingresso su luminoso soggiorno, la cucina abitabile con finestra e porta finestra, l'antibagno e bagno finestrato con piatto doccia e sanitari moderni incassati.

La zona notte è composta da un'ampia camera da letto padronale, con possibilità di ricavare una comoda cabina armadio e una seconda camera di modeste dimensioni.

I lavori di ristrutturazione sono stati particolarmente accurati. Al piano terreno è stata completamente rifatta la soletta con realizzazione di vespaio aerato, mentre il tetto è stato integralmente ricostruito e isolato, garantendo elevati standard di comfort abitativo.

Le finiture prevedono i serramenti in PVC con doppio vetro camera, con finitura esterna effetto legno e gelosie in PVC coordinate in tinta legno. La pavimentazione in gres porcellanato effetto rovere chiaro.

Il sistema di riscaldamento sarà alimentato da caldaia a condensazione di ultima generazione a gas metano, con impianto a radiatori.

Completa la proprietà un'area esterna esclusiva e recintata sottostante al fabbricato, ideale per realizzare una zona dehor o relax all’aperto, oltre a posto auto coperto di pertinenza.

Una soluzione ideale per chi desidera vivere in un contesto tranquillo, nel centro del paese, in una casa completamente rinnovata che conserva il carattere del cascinale piemontese.

Consegna prevista fine Ottobre 2026.

Mostra tutto

Nelle vicinanze

Trasporto pubblico Trasporto pubblico
Trasporto pubblico
40 m
Scuole Scuole
Scuole
110 m
Farmacia Farmacia
Farmacia Santa Francesca
290 m
Pharmashop
1,8 Km
Supermercati Supermercati
EuroSpin
820 m
Iperfresco Basko
1,7 Km
Negozi Negozi
Laboratorio Il Pasticcere
1,4 Km
Grissinificio Due Valli
1,7 Km
Bar Bar
Vintage
1,7 Km
Breakafe Ristobar
2,8 Km
Caffè del Ponte
2,9 Km
Ristoranti Ristoranti
I doj Botalin
40 m
Castello di Osasco
200 m
Trattoria Valpellice
1,9 Km
La Ciancia
2,4 Km
Zhou
2,5 Km
Mostra tutto

Caratteristiche

Rif.:
61189964
Piano:
1 di 2 (Piano medio)
Posti auto:
1
Balconi:
1
Camere da letto:
2
Arredamento:
Assente
Mostra tutto
Prezzo Prezzo
€ 259.000
Rata mutuo Rata mutuo
€ 1.224 / mese
Spese annue Spese annue
€ 0
Proponi il tuo prezzoProponi il tuo prezzo

Classe Energetica

D
D
D
D
D
D
D
D
D
Anno di costruzione:
2026
Riscaldamento:
Autonomo
Tipo impianto:
A radiatori
Tipo alimentazione:
Metano

Ti interessa visionare l'immobile?

Fissa un appuntamento  Fissa un appuntamento

Richiedi informazioni

Clicca su Leggi per aprire l'informativa
* Questi campi sono obbligatori

Calcola il tuo mutuo

Semplice e senza impegno
Anticipo

( % )
Mutuo

( % )

pochi semplici passi

inserisci i tuoi dati
Questionario completato
Grazie per aver richiesto un appuntamento senza impegno con un nostro Consulente del Credito e Assicurativo.

Hai inserito correttamente tutti i dati necessari e a breve riceverai una e-mail con un link da convalidare per inviare i tuoi dati.
Affiliato
Studio San Secondo Sas
Via Bonatto, 10/B 10060 San Secondo Di Pinerolo (TO)

Il nostro staff


  • Alessandro Torcisi
    Affiliato
Via Bonatto, 10/B 10060 San Secondo Di Pinerolo (TO)
Zona: San Secondo-Osasco-Porte-S. Pietro-Prarostino
Mostra su mappa
Orari: da LUNEDI' a VENERDI' 09.00-12.30 e 14.30-19.30; SABATO CHIUSURA 18.00
Affiliato
Studio San Secondo Sas
Via Bonatto, 10/B 10060 San Secondo Di Pinerolo (TO)

2026 Tecnocasa Franchising S.p.A. - P. IVA 08365160152 - Via Monte Bianco 60/A 20089 Rozzano (MI). Ogni agenzia ha un proprio titolare ed è autonoma. Privacy policy | Policy utilizzo | Cookie policy